Rozpoczynamy cykl filmów o budowie praktycznego domu szkieletowego w Ławkach

Jesteśmy po nagraniu pierwszego z serii filmów, jakie poświęcimy realizacji projektu domu szkieletowego w zabudowie parterowej, który jest naszą propozycją dla rodzin 4-osobowych. Dlaczego akurat ten dom? Ze względu na jego walory funkcjonalne przy stosunkowo niewielkiej powierzchni użytkowej. Dowiedz się więcej z dalszej części artykułu.

Inwestorami jest małżeństwo z dwójką dzieci, co zdeterminowało kierunek prac projektowych nad budynkiem, prowadzonych przez naszego architekta, mgr. inż. Stanisława Arciucha.

Dom miał mieć prostą bryłę i wnętrza zoptymalizowane pod względem wielkości tak, by po wyprowadzce pełnoletnich dzieci (co może nastąpić już wkrótce), nie stał się zbyt duży dla samych rodziców, ze wszystkimi tego niedogodnościami.

Pomimo kompaktowych wymiarów ma wygodne sypialnie dla wszystkich domowników i – co bardzo ważne – sporą część dzienną, tj. salon z jadalnią, które pozwolą rodzinie komfortowo spędzać wspólny czas.

W budynku nasz architekt zaprojektował taras tak, by był w pełni praktyczny, czyli znajdował się pod zadaszeniem. To umożliwi korzystanie z niego także podczas opadów deszczu i upałów. To istotny element dla tego domu, ponieważ znajduje się on na bardzo atrakcyjnej działce leśnej o walorach rekreacyjnych.

Instalacje budynku 

Za ogrzewanie wnętrz i CWU odpowiadać będzie kocioł indukcyjny na gaz, zaś wentylację, rekuperator, który będzie utrzymywać we wnętrzu mniej więcej stałą wilgotność na wymaganym poziomie około 48%, odzyskując aż do 92% ciepła wytworzonego przez system CO.

Alternatywnym źródłem ogrzewania będzie kominek z rozprowadzeniem ciepłego powietrza przez wentylację.

Projekt architektoniczny

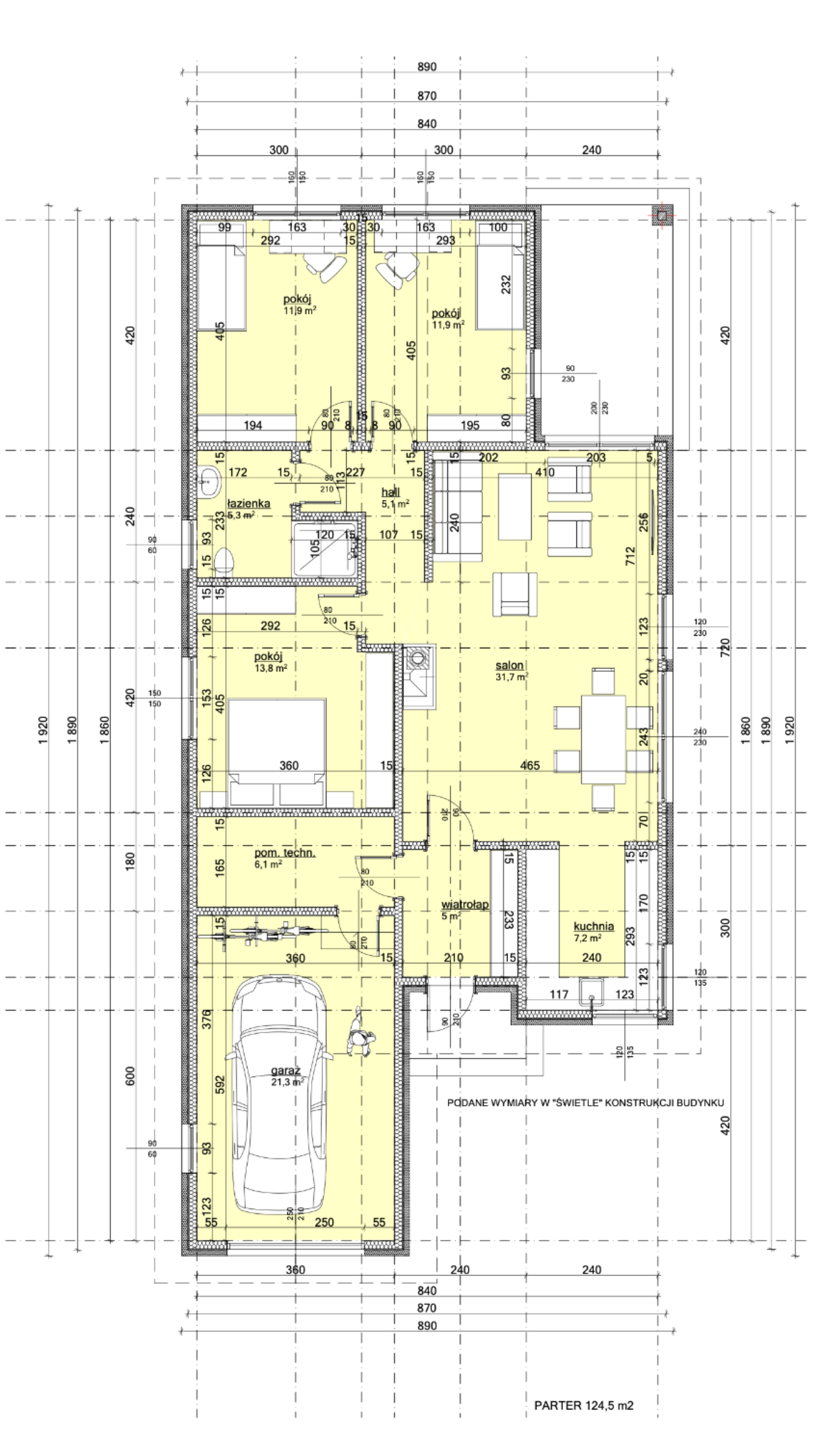
Rzut płaski pomieszczeń

Rzuty Elewacji


Elewacja frontowa.


Elewacja tylna.


Elewacja boczna-lewa.


Elewacja boczna-prawa.

Relacja z budowy

Obejrzyj pierwszą część filmu z serii, którą poświęcamy temu domowi: https://www.youtube.com/watch?v=eQD-rJMfpPM&feature=youtu.be

SLIDER

Jeśli jest Ci trudno zdecydować się na gotowy projekt domu murowanego do adaptacji lub nie chcesz projektować swojego domu indywidualnie od A do Z, to przygotowaliśmy dla Ciebie propozycje gotowych projektów domów szkieletowych Top Bud®. Pamiętaj, że każdy z prezentowanych w tym dziale projektów możemy jeszcze dostosować do Twoich wymagań mieszkaniowych, estetycznych i instalacyjnych lub od razu wybudować na jego podstawie dom.

czytaj

W tym dziale naszego serwisu internetowego zgromadziliśmy dla Ciebie filmy, w których ukazujemy różne zagadnienia wynikające z budowy domów szkieletowych przez naszą firmę. Dzięki nim prześledzisz rozwiązania techniczne i materiałowe, które stosujemy w trakcie realizacji inwestycji naszych Klientów. W filmach poruszamy również tematy finansowe powiązane z budową energooszczędnych domów Top Bud®. Zachęcamy Cię serdecznie do oglądania.

czytaj

Technologia szkieletowa

W tym dziale zamieściliśmy pomocne informacje na temat zasad budowy domów szkieletowych, które obowiązują w naszej firmie. Dowiedz się, jak wznosimy taki dom i z jakich materiałów. Obejrzyj zdjęcia i filmy z jego budowy. Przygotowaliśmy je dla Ciebie, aby ułatwić Ci zrozumienie, skąd bierze się wytrzymałość i energooszczędność domów szkieletowych Top Bud®.

czytaj

Prezentujemy niektóre przykłady domów szkieletowych naszych Klientów, które wybudowaliśmy od 2016 roku do teraz. W sumie na swoim koncie mamy blisko 700 zrealizowanych inwestycji, a wśród nich domy parterowe, z poddaszem użytkowym, piętrem, szeregowe i w zabudowie bliźniaczej. Wybudowaliśmy też dwa nadmorskie pensjonaty, biurowiec dla firmy, przedszkole i placówkę medyczną pod nadzorem warszawskiego konserwatora zabytków. Starsze realizacje chętnie zaprezentujemy Ci podczas spotkania w siedzibie naszej firmy.

czytaj

JAK PRACUJEMY

W tym dziale znajdziesz odpowiedzi na pytania o nasz zakres obsługi Klientów przed budową domu szkieletowego, w jej trakcie, i po zakończeniu. Dzięki nim dowiesz się, jak krok po kroku zrealizujemy Twoją inwestycję i jak będziesz uczestniczyć w tym procesie.

czytaj

AKTUALNOŚCI

Bądź na czasie z najważniejszymi wydarzeniami w naszej firmie. Zachęcamy Cię do śledzenia kolejnych realizacji domów naszych Klientów, ciekawych artykułów o technologii szkieletowej oraz materiałach budowlanych, projektach architektonicznych, systemach grzewczych, wentylacyjnych, itd. Treści, które publikujemy w naszych Aktualnościach uzupełniamy licznymi zdjęciami i filmami, które urozmaicą Ci czas zapoznawania się z naszym wykonawstwem domów szkieletowych.

czytaj

DLA INWESTORA

Dlaczego warto zdecydować się na dom szkieletowy? Jakie są jego zalety mieszkaniowe i korzyści finansowe? Ponadto, na jak długo wystarczy taki dom i ile kosztuje jego eksploatacja? Takie i podobne zagadnienia, wyjaśniamy dla Ciebie w tym dziale naszego serwisu.

czytaj

DOMY ENERGOOSZCZĘDNE

Tutaj zebraliśmy dla Ciebie informacje, które warto znać rozważając budowę domu w technologii szkieletowej-drewnianej przez naszą firmę. Dzięki nim dowiesz się więcej o korzyściach takiej inwestycji. Wiedza, którą się z Tobą dzielimy, jest efektem naszego, blisko 30-letniego doświadczenia w projektowaniu i budowie domów w tej technologii.

czytaj

O NAS

Tutaj znajdziesz przydatne informacje o naszej firmie – jej historii, zapleczu technicznym, pracownikach, szkoleniach, działalności pozakomercyjnej, itd. Jeśli zastanawiasz się nad powierzeniem budowy Twojego wymarzonego domu szkieletowego naszej firmie, dowiedz się kim jesteśmy.

czytaj

OFERTA

Dowiedz się, jak pomożemy w budowie wymarzonego domu szkieletowego, ile kosztuje taka inwestycja w różnych wariantach, a także, jaką gwarancję otrzymasz od naszej firmy po jej ukończeniu. Znajdziesz tu również opis wartości dodanych naszej obsługi inwestorskiej. Jeśli zdecydujesz się na budowę domu szkieletowego przez naszą firmę, skorzystasz z nich, jak każdy dotychczasowy Klient Top Bud®. Zatem zachęcamy Cię serdecznie do zapoznania się z naszą ofertą.

czytaj

powrót do góry