Otworzyliśmy cztery nowe place budów domów szkieletowych Top Bud®

Inwestycje znajdują się w okolicach Góry Kalwarii, Piaseczna i Grodziska Mazowieckiego. Przewidujemy ich zakończenie wiosną 2026 roku. Obejrzyj rzuty projektowe domów i pierwsze relacje wideo z placów budowy.

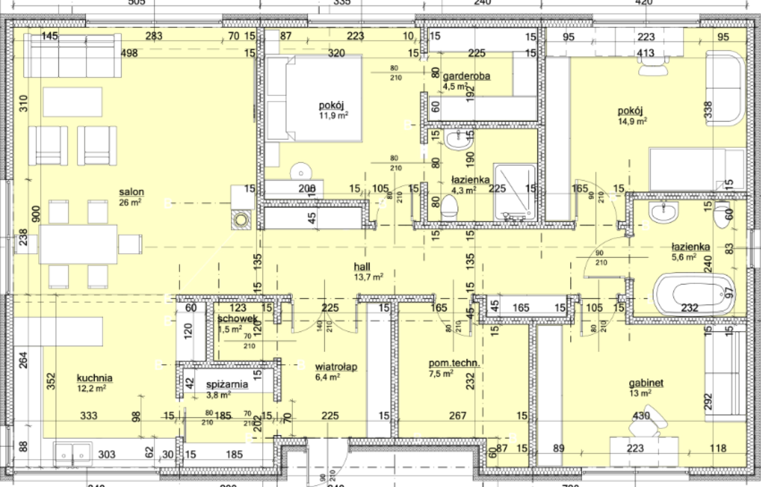
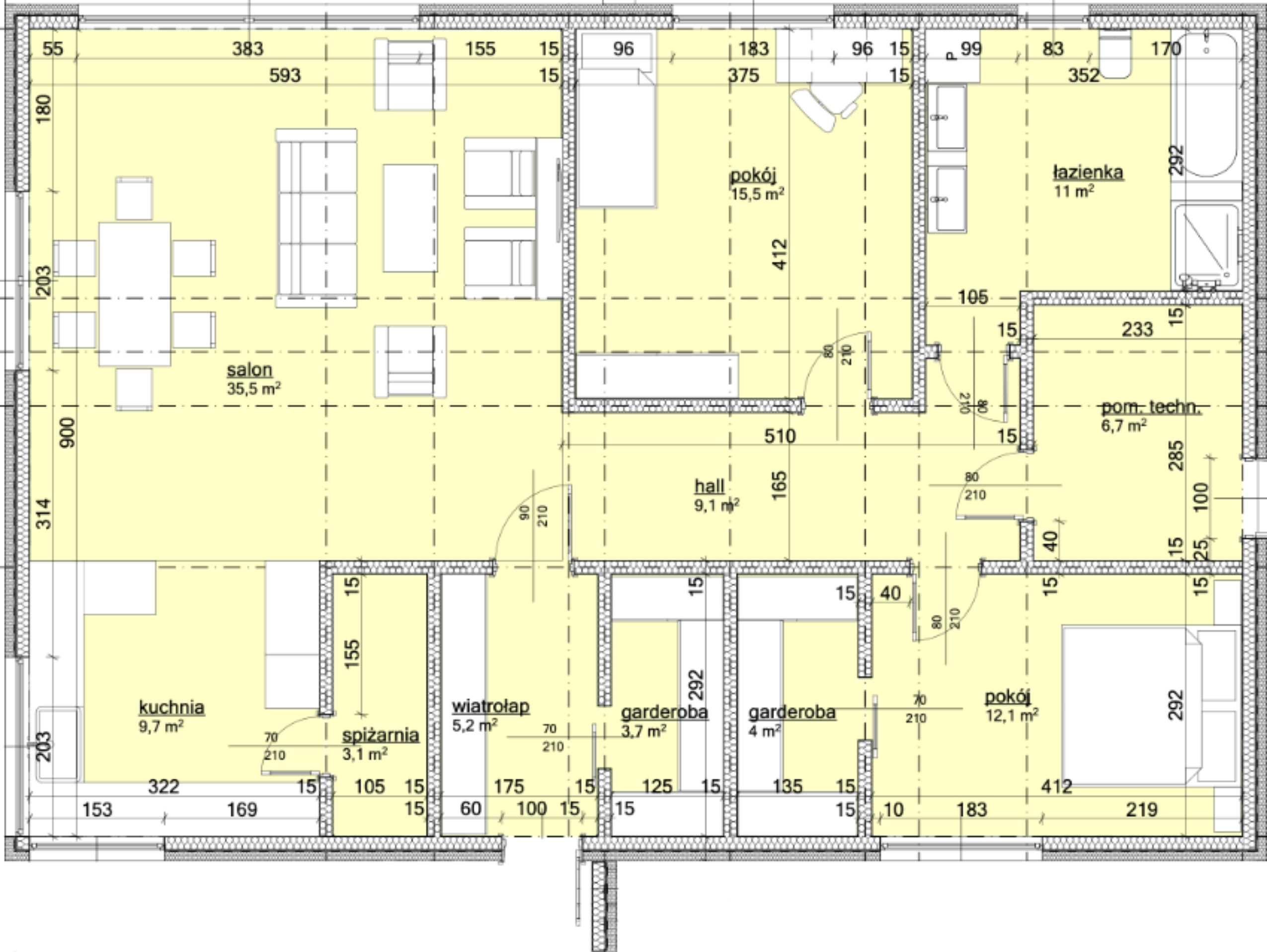
Dwa domy na jednej działce dla Inwestorów będących braćmi

Oba budynki powstają na dużej działce w okolicach Góry Kalwarii. Będą to domy parterowe o różnych powierzchniach użytkowych.

Rzut pomieszczeń mniejszego domu 103,4 M2

Rzut pomieszczeń większego domu 132,5 M2 


Obecnie wykonujemy dla obu domów tradycyjne fundamenty ze ścianką z bloczka na ławie zbrojonej. Początkowy etap prac możesz obejrzeć na tym filmie:

Dom parterowy 125,3 M2 w Adamowie-Wsi

Powstaje w ładnej okolicy leśnej koło Grodziska. Jest to dom parterowy z odsłoniętym stropem nad salonem. Obecnie kończymy etap budowy drewnianej konstrukcji.

Rzut płaski domu szkieletowego 125,3 M2


W materiale wideo na końcu artykułu obejrzysz aktualny stan robót przy tej inwestycji.

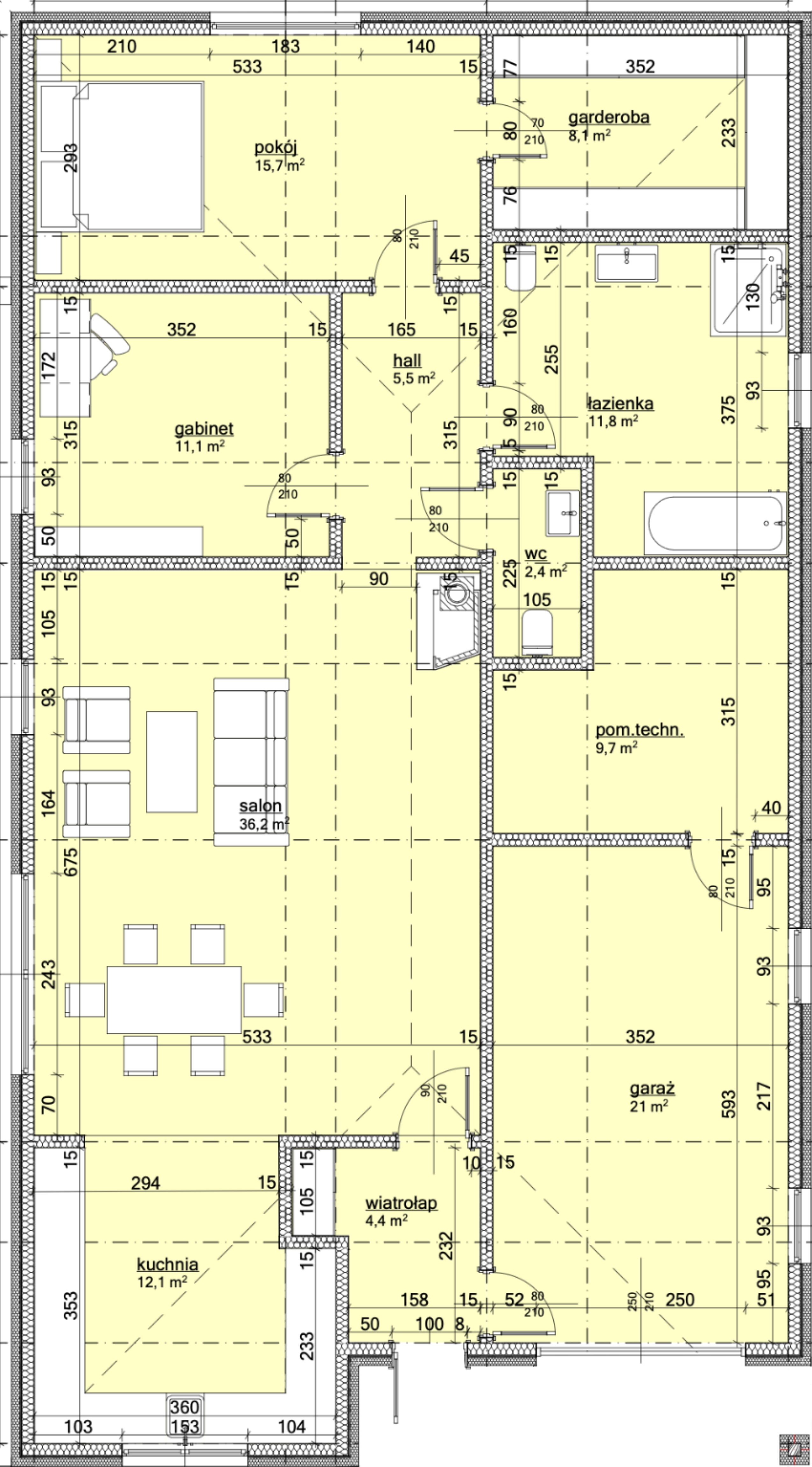
Dom parterowy 112,4 w Bogatkach

Budynek w praktycznej formie architektonicznej na planie prostokąta z dachem dwuspadowym i zadaszeniem nad tarasem. We wnętrzu ukończonej konstrukcji wykonujemy aktualnie instalację wodną i kanalizacyjną, a na zewnątrz, dach kryjemy blachą.

Rzut płaski domu szkieletowego 112,4 M2

Oba wspomniane wyżej domy z Adamowa-Wsi i Bogatek obejrzysz na tym filmie:

SLIDER

Jeśli jest Ci trudno zdecydować się na gotowy projekt domu murowanego do adaptacji lub nie chcesz projektować swojego domu indywidualnie od A do Z, to przygotowaliśmy dla Ciebie propozycje gotowych projektów domów szkieletowych Top Bud®. Pamiętaj, że każdy z prezentowanych w tym dziale projektów możemy jeszcze dostosować do Twoich wymagań mieszkaniowych, estetycznych i instalacyjnych lub od razu wybudować na jego podstawie dom.

czytaj

W tym dziale naszego serwisu internetowego zgromadziliśmy dla Ciebie filmy, w których ukazujemy różne zagadnienia wynikające z budowy domów szkieletowych przez naszą firmę. Dzięki nim prześledzisz rozwiązania techniczne i materiałowe, które stosujemy w trakcie realizacji inwestycji naszych Klientów. W filmach poruszamy również tematy finansowe powiązane z budową energooszczędnych domów Top Bud®. Zachęcamy Cię serdecznie do oglądania.

czytaj

Technologia szkieletowa

W tym dziale zamieściliśmy pomocne informacje na temat zasad budowy domów szkieletowych, które obowiązują w naszej firmie. Dowiedz się, jak wznosimy taki dom i z jakich materiałów. Obejrzyj zdjęcia i filmy z jego budowy. Przygotowaliśmy je dla Ciebie, aby ułatwić Ci zrozumienie, skąd bierze się wytrzymałość i energooszczędność domów szkieletowych Top Bud®.

czytaj

Prezentujemy niektóre przykłady domów szkieletowych naszych Klientów, które wybudowaliśmy od 2016 roku do teraz. W sumie na swoim koncie mamy blisko 700 zrealizowanych inwestycji, a wśród nich domy parterowe, z poddaszem użytkowym, piętrem, szeregowe i w zabudowie bliźniaczej. Wybudowaliśmy też dwa nadmorskie pensjonaty, biurowiec dla firmy, przedszkole i placówkę medyczną pod nadzorem warszawskiego konserwatora zabytków. Starsze realizacje chętnie zaprezentujemy Ci podczas spotkania w siedzibie naszej firmy.

czytaj

JAK PRACUJEMY

W tym dziale znajdziesz odpowiedzi na pytania o nasz zakres obsługi Klientów przed budową domu szkieletowego, w jej trakcie, i po zakończeniu. Dzięki nim dowiesz się, jak krok po kroku zrealizujemy Twoją inwestycję i jak będziesz uczestniczyć w tym procesie.

czytaj

AKTUALNOŚCI

Bądź na czasie z najważniejszymi wydarzeniami w naszej firmie. Zachęcamy Cię do śledzenia kolejnych realizacji domów naszych Klientów, ciekawych artykułów o technologii szkieletowej oraz materiałach budowlanych, projektach architektonicznych, systemach grzewczych, wentylacyjnych, itd. Treści, które publikujemy w naszych Aktualnościach uzupełniamy licznymi zdjęciami i filmami, które urozmaicą Ci czas zapoznawania się z naszym wykonawstwem domów szkieletowych.

czytaj

DLA INWESTORA

Dlaczego warto zdecydować się na dom szkieletowy? Jakie są jego zalety mieszkaniowe i korzyści finansowe? Ponadto, na jak długo wystarczy taki dom i ile kosztuje jego eksploatacja? Takie i podobne zagadnienia, wyjaśniamy dla Ciebie w tym dziale naszego serwisu.

czytaj

DOMY ENERGOOSZCZĘDNE

Tutaj zebraliśmy dla Ciebie informacje, które warto znać rozważając budowę domu w technologii szkieletowej-drewnianej przez naszą firmę. Dzięki nim dowiesz się więcej o korzyściach takiej inwestycji. Wiedza, którą się z Tobą dzielimy, jest efektem naszego, blisko 30-letniego doświadczenia w projektowaniu i budowie domów w tej technologii.

czytaj

O NAS

Tutaj znajdziesz przydatne informacje o naszej firmie – jej historii, zapleczu technicznym, pracownikach, szkoleniach, działalności pozakomercyjnej, itd. Jeśli zastanawiasz się nad powierzeniem budowy Twojego wymarzonego domu szkieletowego naszej firmie, dowiedz się kim jesteśmy.

czytaj

OFERTA

Dowiedz się, jak pomożemy w budowie wymarzonego domu szkieletowego, ile kosztuje taka inwestycja w różnych wariantach, a także, jaką gwarancję otrzymasz od naszej firmy po jej ukończeniu. Znajdziesz tu również opis wartości dodanych naszej obsługi inwestorskiej. Jeśli zdecydujesz się na budowę domu szkieletowego przez naszą firmę, skorzystasz z nich, jak każdy dotychczasowy Klient Top Bud®. Zatem zachęcamy Cię serdecznie do zapoznania się z naszą ofertą.

czytaj

powrót do góry